In Eisenstadt durfte plusminusnull Architektur ein unscheinbares Gebäude aus den 1970er Jahren in eine moderne Stadtvilla verwandeln, die seinen Vorgänger ganz und gar in Vergessenheit geraten lässt.
Wohnnutzfläche: 272,30 m²
Heizwärmebedarf: 26,30kWh/m²a
Ort: Eisenstadt
Status: Realisierung (11/2024 – 12/2025)


Die geradlinige Architektur besticht mit ihren Details. Während das Erdgeschoß in weißem Putz erscheint, wurde das Obergeschoß mit dunkelgrauem Holz verkleidet, die in den Kubus zurückgezogenen Loggien und Terrassen erscheinen in einem Champagnerton.
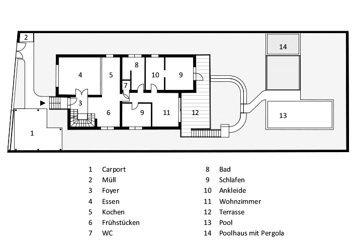
Die viel zu steile Einfahrt in die ehemalige Garage wurde zugeschüttet, stattdessen ein Carport im rechten Vorgartenbereich errichtet.
Gartenseitig erfuhr die dem Wohnzimmer vorgelagerte Terrasse eine Vergrößerung, überdies ist sie nun über eine Treppe mit dem Garten verbunden.

Lang lebe das Holz.
Eine seidenmatte, deckende Lasur auf Basis langöliger Alkydharze macht die Holzfassade witterungsbeständig, die Farbe ist nicht nur diffusionsoffen und feuchtigkeitsregulierend, sondern auch überaus umweltfreundlich. Hinzu kommt eine Beschichtung gegen Bläue- und Schimmelpilzbefall.
Die innere Verwandlung
Schon das Entree mit seiner offenen Stahltreppe vermittelt jene Großzügigkeit, die dem ganzen Projekt als Leitgedanke diente.
Der Eingangsbereich fällt nun großzügiger aus und bietet ausreichend Platz für das Verstauen von Jacken, Mänteln und Schuhen.

Der Bestandsgrundriss im Erdgeschoss erfuhr eine behutsame Neustrukturierung.
Nach statischer Prüfung konnte die Wand zwischen der Küche und dem ehemaligen Wohnzimmer abgerissen werden, stehen blieb lediglich der Kamin. Wo einst Couch und Fernseher standen, findet nun ein großer Esstisch Platz, die als Doppelzeile angelegte Küche weist sich bei aller Offenheit als klar vom Essbereich getrennte Zone aus.

Den tragenden Strukturen des Vorgängerbaus entsprechend führt ein zentraler Gang weiter in Richtung Terrasse bzw. Garten. Zu einer Seite liegen Toilette, Bad, Schrankraum und
Schlafzimmer, zur anderen ein Kinderzimmer sowie ein neuer, offener Wohnraum, dem eine über dem Garten schwebende Terrasse vorlagert.
Lebenszimmer.
Als »Lebenszimmer« bezeichnen wir jenen großen Raum im Obergeschoß, in dem Bauherr und Bauherrin ihren Hobbys nachgehen können. Hier warten Bücher, Instrumente und Schallplatten, eine großzügige Couch und ein offener Kamin laden ein zum gemeinsamen Dolcefarniente.
Zurückgezogen hinter ein kleines Bad zur Linken und ein Gästezimmer zur Rechten liegen die beiden, sich nach dem ruhigen Garten orientierenden Arbeitszimmer.
Der Erde entwachsen.
Während sich in jenem Bereich, der tatsächlich zur Gänze unter der Erde verschwindet, die üblichen Kellergestalten wie Haustechnik- und Lagerräume verstecken, verschreibt sich der dem Erdreich erwachsende, dem Garten zugewandte Bereich der Erholung. Links der Wellnessbereich mit Sauna und Bad, rechts ein modern gestalteter Weinkeller für Feste und Feiern.

Unsere Leistungen
- Vorentwurf, Entwurf
- Einreichplanung inkl. Bauphysik (Energieausweis)
- Polierplanung
- Ausschreibungen
- Örtliche Bauaufsicht

